カスタリア芝公園
204
15.3万円
仲介手数料0円
築22年
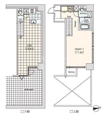
1R
30.5m²
東京都港区芝3丁目32-10
掲載開始日: 2026年3月14日
(1ヶ月前)
月額費用
家賃 | 15.3万円 |
管理費・共益費 | 0.8万円 |
月額合計 | 16.1万円 |
|---|
初期費用
仲介手数料 | 0円 |
敷金 | 16.1万円 |
礼金 | 0円 |
保証料 | 8.05万円 |
合計金額(概算) | 24.1万円 |
|---|
通常、鍵交換・クリーニング・火災保険・安心サポートなどの追加費用が別途発生します。詳細はお問い合わせください。
入居情報
入居開始予定日
即入居可
掲載開始日
2026年3月14日
(1ヶ月前)
交通アクセス
三田
4分
三田
4分
田町
9分
設備・特徴
2階以上
オートロック
エアコン
バス・トイレ別
室内洗濯機置き場
浴室乾燥機
モニター付きインターホン
防犯カメラ
2人入居可
管理会社
株式会社モリモトクオリティ
似た条件の物件
Hokinawaとは
Hokinawaは仲介手数料0円のオンライン不動産サービスです。管理会社から直接届く最新の空室情報をリアルタイムで確認し、気に入った物件はダイレクトに申し込み。押し売りや無断での電話・メールによる営業は一切行っておりません。
仲介手数料 0円
通常1ヶ月分が不要
来店不要
オンライン完結
ダイレクト申し込み
気に入ったらそのまま手続き
エリア情報
三田駅(都営三田線・都営浅草線)は港区三田の拠点駅で、慶應義塾大学三田キャンパスや芝公園方面への玄関口としての役割があります。JR田町駅と近接しており、ビジネスエリアと住宅地、学生街が混じり合う街並みが広がっています。周辺には老舗の居酒屋や喫茶店、書店といった個人商店が残る一方で、増上寺や緑地など落ち着いた景観も感じられます。








