カンパヴィラ新蒲田
00101
最終募集時の賃料
20.8万円
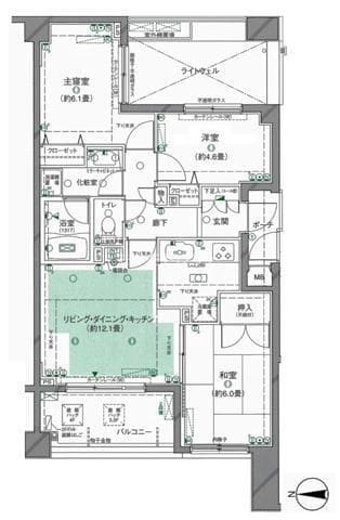
新築
2LDK
68.1m²
南向き
東京都大田区新蒲田2丁目7-6
最終更新日: 2026年4月14日
交通アクセス
矢口渡
6分
設備・特徴
オートロック
バス・トイレ別
室内洗濯機置き場
浴室乾燥機
モニター付きインターホン
防犯カメラ
床暖房
管理会社
シャーメゾンショップ東京株式会社 麻布十番営業所
Hokinawaとは
Hokinawaは仲介手数料0円のオンライン不動産サービスです。管理会社から直接届く最新の空室情報をリアルタイムで確認し、気に入った物件はダイレクトに申し込み。押し売りや無断での電話・メールによる営業は一切行っておりません。
仲介手数料 0円
通常1ヶ月分が不要
来店不要
オンライン完結
ダイレクト申し込み
気に入ったらそのまま手続き





