ジェノヴィア南千住Ⅶ
702
15.7万円
仲介手数料0円
築4年
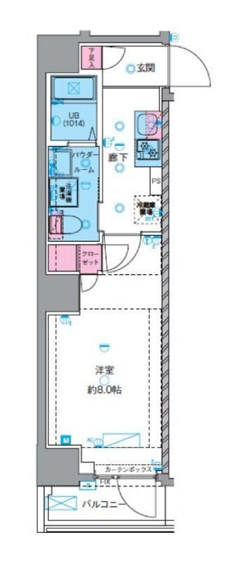
1SLDK
40.9m²
東向き
東京都台東区清川1丁目16-11
掲載開始日: 2026年4月7日
(1週間前)
申請・内見予約・メッセージにはログインが必要です。最短1分で完了。
月額費用
家賃 | 15.7万円 |
管理費・共益費 | 1.5万円 |
月額合計 | 17.2万円 |
|---|
初期費用
仲介手数料 | 0円 |
敷金 | 0円 |
礼金 | 0円 |
保証料 | 8.6万円 |
合計金額(概算) | 8.6万円 |
|---|
通常、鍵交換・クリーニング・火災保険・安心サポートなどの追加費用が別途発生します。詳細はお問い合わせください。
入居情報
入居開始予定日
要確認
掲載開始日
2026年4月7日
(1週間前)
交通アクセス
南千住
15分
設備・特徴
2階以上
ペット相談可
オートロック
エアコン
バス・トイレ別
室内洗濯機置き場
独立洗面台
浴室乾燥機
モニター付きインターホン
防犯カメラ
2人入居可
管理会社
株式会社リアルワン
似た条件の物件
Hokinawaとは
Hokinawaは仲介手数料0円のオンライン不動産サービスです。管理会社から直接届く最新の空室情報をリアルタイムで確認し、気に入った物件はダイレクトに申し込み。押し売りや無断での電話・メールによる営業は一切行っておりません。
仲介手数料 0円
通常1ヶ月分が不要
来店不要
オンライン完結
ダイレクト申し込み
気に入ったらそのまま手続き
エリア情報
南千住はJR常磐線、東京メトロ日比谷線、つくばエクスプレスが交差する、荒川区と台東区の境に位置する駅です。昔ながらの商店街や町工場が混在し、下町らしい飲食店や銭湯、隅田川沿いのリバーサイド公園が日常風景を形づくっています。上野・都心方面と郊外を結ぶ乗換拠点として機能し、通勤・通学の流れと地域の暮らしが素朴に共存するエリアです。

