ジェノヴィア東向島Ⅳ
201
16.3万円
仲介手数料0円
新築
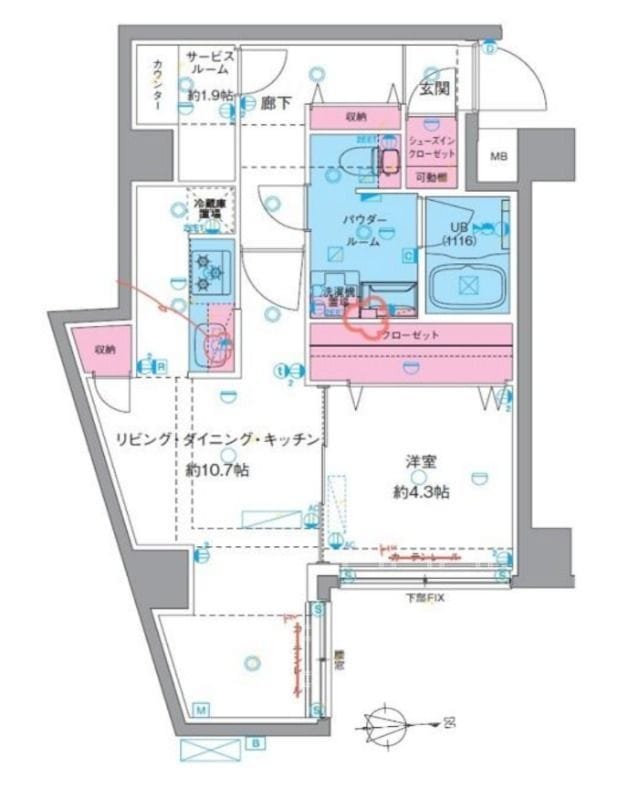
1SLDK
40.5m²
東京都墨田区東向島4丁目31-10
掲載開始日: 2026年2月25日
(1ヶ月前)
申請・内見予約・メッセージにはログインが必要です。最短1分で完了。
月額費用
家賃 | 16.3万円 |
管理費・共益費 | 1.5万円 |
月額合計 | 17.8万円 |
|---|
初期費用
仲介手数料 | 0円 |
敷金 | 0円 |
礼金 | 0円 |
保証料 | 8.9万円 |
合計金額(概算) | 8.9万円 |
|---|
通常、鍵交換・クリーニング・火災保険・安心サポートなどの追加費用が別途発生します。詳細はお問い合わせください。
入居情報
入居開始予定日
要確認
掲載開始日
2026年2月25日
(1ヶ月前)
交通アクセス
東向島
3分
設備・特徴
2階以上
ペット相談可
オートロック
エアコン
バス・トイレ別
室内洗濯機置き場
独立洗面台
浴室乾燥機
モニター付きインターホン
防犯カメラ
2人入居可
管理会社
株式会社リアルワン
似た条件の物件
Hokinawaとは
Hokinawaは仲介手数料0円のオンライン不動産サービスです。管理会社から直接届く最新の空室情報をリアルタイムで確認し、気に入った物件はダイレクトに申し込み。押し売りや無断での電話・メールによる営業は一切行っておりません。
仲介手数料 0円
通常1ヶ月分が不要
来店不要
オンライン完結
ダイレクト申し込み
気に入ったらそのまま手続き
エリア情報
東武伊勢崎線の東向島駅は墨田区向島の下町エリアに位置し、駅前には商店街や昔ながらの住宅が続きます。隅田川沿いや古い寺社、向島百花園など緑や歴史を感じられるスポットが近く、散歩や地域の暮らしの風景が色濃く残っています。地元向けの飲食店や和菓子店、小さな商店が集まる、日常の足として使われるローカルな駅です。




