インプルーブ上野松が谷
202
24.5万円
仲介手数料0円
築25年
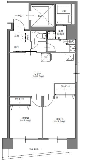
2DK
50.7m²
東京都台東区松が谷3丁目9-7
掲載開始日: 2026年2月27日
(1ヶ月前)
申請・内見予約・メッセージにはログインが必要です。最短1分で完了。
月額費用
家賃 | 24.5万円 |
管理費・共益費 | 1万円 |
月額合計 | 25.5万円 |
|---|
初期費用
仲介手数料 | 0円 |
敷金 | 0円 |
礼金 | 0円 |
保証料 | 12.8万円 |
合計金額(概算) | 12.8万円 |
|---|
通常、鍵交換・クリーニング・火災保険・安心サポートなどの追加費用が別途発生します。詳細はお問い合わせください。
入居情報
入居開始予定日
即入居可
掲載開始日
2026年2月27日
(1ヶ月前)
交通アクセス
入谷
8分
稲荷町
10分
上野
13分
設備・特徴
2階以上
オートロック
エアコン
バス・トイレ別
室内洗濯機置き場
独立洗面台
浴室乾燥機
モニター付きインターホン
防犯カメラ
管理会社
株式会社アズ・スタット 東京支社
似た条件の物件
Hokinawaとは
Hokinawaは仲介手数料0円のオンライン不動産サービスです。管理会社から直接届く最新の空室情報をリアルタイムで確認し、気に入った物件はダイレクトに申し込み。押し売りや無断での電話・メールによる営業は一切行っておりません。
仲介手数料 0円
通常1ヶ月分が不要
来店不要
オンライン完結
ダイレクト申し込み
気に入ったらそのまま手続き
エリア情報
東京メトロ日比谷線の入谷駅は、台東区と荒川区の境辺りに位置する下町の小さな玄関口で、上野や浅草方面へのアクセス手段として地域に根付いています。周辺は古い商店街や小さな寺社が点在する住宅地で、特に夏に開かれる入谷の朝顔市など伝統的な行事で知られる素朴な町並みが残っています。日常使いの飲食店や居酒屋、個人商店が多く、観光地とは異なる落ち着いた下町の風情が感じられます。

