ホーム

/

エリア検索

/

目黒区

/

イクサージュ目黒

イクサージュ目黒

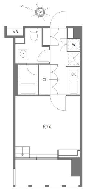
319

最終募集時の賃料

18.9万円

築16年
1LDK
40.6m²

東京都目黒区下目黒3丁目10-34

東急目黒線の路線アイコン不動前5

最終更新日: 2026年2月6日

交通アクセス

東急目黒線の路線アイコン

不動前

5

JR山手線の路線アイコン

目黒

12

東急目黒線の路線アイコン

武蔵小山

16

設備・特徴

2階以上
オートロック
エアコン
バス・トイレ別
室内洗濯機置き場
浴室乾燥機
モニター付きインターホン
防犯カメラ
床暖房

管理会社

株式会社RENOSY ASSET MANAGEMENT

エリア情報

不動前駅の住みやすさガイド

目黒の隣で、きちんと暮らせる。静けさと実用性が自然に両立する街

不動前駅は、東急目黒線で目黒駅のすぐ隣。都心に近い立地でありながら、駅前の空気は驚くほど穏やかです。大きなターミナルのような喧騒はなく、日常に必要なものが無理なくまとまり、少し歩けば住宅地らしい静けさが広がる。
この**「都心近接なのに、暮らしの重心がぶれない」**感覚こそ、不動前のいちばんの魅力でしょう。

駅名の由来にもつながる目黒不動尊(瀧泉寺)の門前町らしい落ち着きがあり、さらに林試の森公園の豊かな緑も身近です。目黒や五反田を生活圏に収めながら、自宅の近くでは肩の力を抜いて過ごしたい。そんな人に、不動前はよく合います。

不動前はどんな街?

不動前をひとことで表すなら、派手さではなく、暮らしやすさで選ばれる街です。

駅前はコンパクトですが、そのぶん動線がいい。高架下や駅周辺にスーパーが集まり、毎日の買い物を遠回りせずに済ませやすいのは、この街の大きな強みです。外食やチェーン店の選択肢は目黒や五反田ほど多くないものの、日常を送る場所としては、むしろ過不足のない密度感があります。

そして、不動前らしさがよりはっきり表れるのは、駅前そのものより少し先のエリアです。坂道や細い道が混ざる住宅地、寺の周辺に残るやわらかな空気、大きな公園へ抜けていく開放感。
便利なだけで終わらず、街にきちんと表情がある。そこが不動前のよさです。

駅前の利便性は“十分以上”。日常の買い物に強い

不動前は、毎日の生活導線を組み立てやすい駅です。

普段使いしやすいのが、駅前の東急ストア不動前店。仕事帰りにも立ち寄りやすく、日々の買い物を手堅く支えてくれます。さらに、食材をしっかり選びたい人にはオオゼキ目黒不動前店が頼もしい存在。生鮮を含めてきちんと買いたい日にも使いやすいです。

単に「駅前にスーパーがある」だけでなく、用途に応じて使い分けができるのは、不動前で暮らすうえでの大きな利点でしょう。

軽く食事を済ませたいときには、マクドナルド目黒不動前店のような定番もあり、忙しい平日に助かります。駅前の店数は決して多すぎませんが、必要なものがきちんとそろう感覚があります。

もう少しまとまった買い物をしたいなら、五反田方面のTOCビルも視野に入ります。不動前は「駅前だけですべて完結する街」ではありませんが、周辺エリアまで含めて考えると、生活の不便は感じにくいはずです。

不動前に住む魅力は、目黒隣接なのに落ち着いていること

目黒の隣と聞くと、便利さと引き換えに騒がしさもある街を想像するかもしれません。ですが、実際の不動前はそのイメージと少し異なります。

都心へのアクセスは良好でありながら、駅周辺は比較的静かで、住宅地としての落ち着きがあります。しかも、目黒駅や五反田駅が近いため、必要なときだけ大きな街の機能を使い分けられる。
この**「大きな街は近くにあればいい。住む場所は静かなほうがいい」**という価値観に、不動前はよくフィットします。

また、街の歴史がしっかり感じられるのも特徴です。**目黒不動尊(瀧泉寺)**の存在が、単なるベッドタウンにはない奥行きをこの街にもたらしています。由緒ある寺の周辺には、再開発エリアでは得がたい落ち着きがあり、散歩の時間の質も自然と変わってきます。

緑の豊かさは、このエリアでは大きな魅力

不動前の住環境を語るうえで、林試の森公園は外せません。

都心に近いエリアでありながら、これだけしっかりした緑に日常的に触れられるのは大きな価値です。園内は散歩や軽い運動にちょうどよく、休日に遠出をしなくても気分転換しやすい。子どもがいる家庭はもちろん、在宅勤務が多い人、ランニングやウォーキングを習慣にしたい人とも相性のいい街です。

利便性だけを見れば、もっと華やかな駅もあります。けれど、「日常の中に緑があること」まで重視するなら、不動前の評価はぐっと上がります。
駅周辺の実用性と、公園の開放感。その両方が無理なく同居していることは、実際に暮らしたときの満足度に直結します。

家賃相場:安くはないが、立地を考えると現実的

不動前駅周辺の賃料目安は以下の通りです。

  • ワンルーム・1K:9万円〜13万円前後
  • 1LDK:14万円〜22万円前後
  • ファミリー向け:23万円〜50万円台

目黒の隣という立地を考えれば、もちろん格安ではありません。ただ、山手線駅そのものの駅前に住むよりは、落ち着いた住環境を確保しやすく、利便性とのバランスを見れば納得感のある価格帯です。

単身者にとっては、駅近・築浅を狙うなら相応の予算が必要ですが、条件の優先順位を整理すれば選択肢は見つけやすいエリアです。
カップルやDINKsには、目黒周辺より少し生活感のある空気が心地よく感じられるでしょう。
ファミリー層は、広さを求めるほど賃料は上がりますが、緑や学校環境を重視するなら十分に検討する価値があります。

子育て・教育環境を重視する人にも見ておきたい街

不動前周辺は、駅前のにぎわいで引っ張る街ではないぶん、文教・住宅地としての安定感があります。

地域の学校としては、第四日野小学校荏原第一中学校の学区文脈があり、日々の暮らしの中で“地元で育つ”感覚を持ちやすいエリアです。
また、駅近くには攻玉社中学校・高等学校があり、街に文教地区らしい落ち着きを添えています。私学の存在によって、通学時間帯の街にも独特の整った空気があります。

さらに、徒歩圏には立正大学品川キャンパスもあります。大学街というほど学生色が強いわけではありませんが、地域と接点を持つ教育施設があることで、街の表情が単調になりにくいのも不動前らしいところです。

こんな人に不動前は向いている

1. 目黒・五反田に近い場所で、静かに暮らしたい人

職場や行動範囲は都心寄りでも、自宅の近くまで常に人の多さを求めていない人に向いています。

2. 駅前の華やかさより、日常の買い物のしやすさを重視する人

スーパーが使いやすく、平日の生活効率が高い街を探しているなら、不動前はかなり有力です。

3. 緑のある住環境を妥協したくない人

林試の森公園が近いことは、数字以上に日々の満足感へ効いてきます。散歩や運動の習慣がある人には特におすすめです。

4. 歴史や街の空気感も含めて住む場所を選びたい人

門前町としての蓄積があり、ただ新しいだけの街ではありません。住むほどに良さがわかるタイプの街です。

住む前に知っておきたいポイント

不動前は全体としてバランスのいい駅ですが、向き不向きはあります。

まず、駅周辺はコンパクトなので、大型商業施設が駅前にそろう便利さを求める人にはやや物足りないかもしれません。ショッピングや外食の選択肢の多さを最優先するなら、目黒や武蔵小山のほうが満足しやすいでしょう。

また、周辺には坂道や細い道もあります。現地を歩くと印象が変わりやすいエリアなので、内見時には駅から物件までの道のりを実際に確認しておくのがおすすめです。ベビーカーや自転車、毎日の徒歩移動のしやすさは、場所によって差が出ます。

不動前勤務なら、どこに住むのがおすすめ?

不動前に通勤する前提で住む場所を考えるなら、同じ目黒線沿線は非常に相性がいいです。中でも現実的なのは次のエリアです。

武蔵小山駅

不動前のすぐ隣で、通勤負担をほとんど増やさずに生活利便性を大きく高められる選択肢です。商店街の強さがあり、買い物や外食の層も厚いので、駅力を求める人には非常に魅力的。不動前の静けさより、暮らしの便利さを一段重視したい人に向いています。

西小山駅

武蔵小山より落ち着きがあり、賃料とのバランスも取りやすいエリアです。住宅地として穏やかで、不動前までの距離感にも無理がありません。派手さより、静かに暮らせて通勤もしやすいことを重視する人に向いています。

大岡山駅

通勤時間を少し延ばしても、住宅地としての落ち着きや住戸の選択肢を広げたい人におすすめです。沿線の中でも生活の安定感があり、広さとのバランスを見ながら探しやすいのが魅力。不動前まで乗り換えなしで行けるため、日々の移動もシンプルです。

武蔵小杉駅

駅規模や商業利便を重視するなら有力候補です。不動前まで直通で通いやすく、買い物・外食・各方面への移動力はかなり高め。街としては大きいため、不動前の落ち着いた空気感とは対照的ですが、生活機能を優先するなら十分検討できます。

目黒駅

利便性は圧倒的で、山手線も使いたい人には魅力があります。ただし、賃料はしっかり高め。不動前の勤務先に近く、都心アクセスも最優先という明確な理由がある人向けです。住環境の落ち着きという点では、不動前のほうが好まれることも多いでしょう。

不動前駅周辺で働く人はどんな人が住みやすい?

不動前そのものは巨大なオフィス街ではありませんが、五反田側にはTOCビルを中心とした業務機能があり、周辺勤務者の居住地として相性のよさがあります。
また、目黒・五反田・品川方面へ動きやすいため、勤務先がこの周辺にある人にとっては、移動のしやすさと住環境の静けさを両立しやすい駅です。

「会社の近くに住みたい。でも、オフィス街そのものには住みたくない」
そんな人にとって、不動前はちょうどいいポジションにあります。

総評:不動前は“暮らしの質”で選びたい人にこそ強い

不動前駅は、目立つ派手さで選ばれる駅ではありません。けれど、実際に住むことを考えると、完成度の高い街です。

  • 目黒の隣という都心近接
  • 駅前スーパーの使いやすさ
  • 住宅地としての落ち着き
  • 目黒不動尊に代表される街の歴史
  • 林試の森公園の豊かな緑

この5つが、無理なくひとつの暮らしの中に収まっています。

便利なだけの街でも、静かなだけの街でもない。目黒の隣で、ちゃんと暮らせる街。
都心に近く、生活しやすく、きちんと落ち着ける場所を探しているなら、不動前はかなり有力な候補です。再開発駅のわかりやすい華やかさとは違う、じわじわと効いてくる住みやすさがある。
住み替え先として長く満足できる街を探している人ほど、一度、不動前の駅前から住宅地、そして林試の森公園まで歩いてみる価値があります。

ブログ記事を全文で読む

同じ建物の他の部屋
2

募集終了の部屋

似た条件の物件

Hokinawaとは

Hokinawaは仲介手数料0円のオンライン不動産サービスです。管理会社から直接届く最新の空室情報をリアルタイムで確認し、気に入った物件はダイレクトに申し込み。押し売りや無断での電話・メールによる営業は一切行っておりません。

仲介手数料 0円

通常1ヶ月分が不要

来店不要

オンライン完結

ダイレクト申し込み

気に入ったらそのまま手続き

エリア情報

東急目黒線の不動前駅は、品川区寄りに位置し、駅名は近くにある目黒不動尊に由来する地域の駅です。住宅街を基調に昔ながらの商店や個人経営の飲食店、小さなカフェが点在する落ち着いた商店街の風情が残っています。目黒方面や都心へのアクセス拠点として機能し、寺社や緑のある路地が混ざる生活感のある街並みが特色です