ヒュッゲ
D
最終募集時の賃料
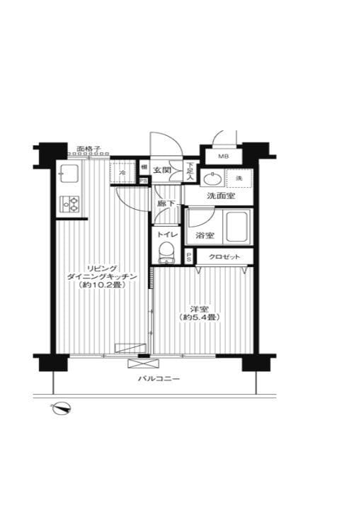
10.6万円
築2年
1LDK
32.8m²
入力なし
神奈川県川崎市宮前区宮崎143-9
最終更新日: 2026年4月1日
交通アクセス
宮崎台
8分
設備・特徴
オートロック
エアコン
バス・トイレ別
室内洗濯機置き場
独立洗面台
浴室乾燥機
モニター付きインターホン
防犯カメラ
管理会社
SHiTEN株式会社
Hokinawaとは
Hokinawaは仲介手数料0円のオンライン不動産サービスです。管理会社から直接届く最新の空室情報をリアルタイムで確認し、気に入った物件はダイレクトに申し込み。押し売りや無断での電話・メールによる営業は一切行っておりません。
仲介手数料 0円
通常1ヶ月分が不要
来店不要
オンライン完結
ダイレクト申し込み
気に入ったらそのまま手続き
エリア情報
宮崎台駅は東急田園都市線の駅で、川崎市宮前区の住宅地に位置しています。都心や川崎の商業地へ向かう通勤・通学の動線としての役割があり、地域の日常を支える駅です。駅前には商店街や小さなカフェ、専門店が連なり、低層住宅と緑地が混在する落ち着いた街並みが特徴です。周辺には家族向けの施設や散歩に適した公園が点在し、地域住民の生活拠点になっています





