高雅ホームズ学芸大
309
23万円
仲介手数料0円
築36年
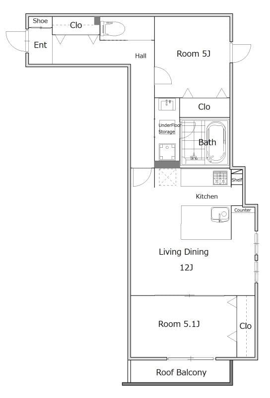
2LDK
70.0m²
入力なし
東京都目黒区碑文谷6丁目1-18
掲載開始日: 2026年3月31日
(2週間前)
申請・内見予約・メッセージにはログインが必要です。最短1分で完了。
月額費用
家賃 | 23万円 |
月額合計 | 23万円 |
|---|
初期費用
仲介手数料 | 0円 |
敷金 | 46万円 |
礼金 | 23万円 |
保証料 | 11.5万円 |
合計金額(概算) | 80.5万円 |
|---|
通常、鍵交換・クリーニング・火災保険・安心サポートなどの追加費用が別途発生します。詳細はお問い合わせください。
入居情報
入居開始予定日
2026年5月11日以降
掲載開始日
2026年3月31日
(2週間前)
交通アクセス
学芸大学
3分
設備・特徴
2階以上
オートロック
エアコン
バス・トイレ別
室内洗濯機置き場
独立洗面台
モニター付きインターホン
2人入居可
管理会社
株式会社フォレスト興産
Hokinawaとは
Hokinawaは仲介手数料0円のオンライン不動産サービスです。管理会社から直接届く最新の空室情報をリアルタイムで確認し、気に入った物件はダイレクトに申し込み。押し売りや無断での電話・メールによる営業は一切行っておりません。
仲介手数料 0円
通常1ヶ月分が不要
来店不要
オンライン完結
ダイレクト申し込み
気に入ったらそのまま手続き
エリア情報
学芸大学駅は東急東横線の駅で、東京都目黒区南部にあり世田谷区との境に近い住宅・商業エリアに位置します。駅前には昔ながらの商店街や個人経営のカフェ、居酒屋が並び、日常の買い物や外食で賑わう街並みが特徴です。落ち着いた住宅街や小さなギャラリー、専門店が点在し、都心方面へのアクセス拠点として地域の生活に根づいています。







