平河町森タワーレジダンス
1809
最終募集時の賃料
124万円
築16年
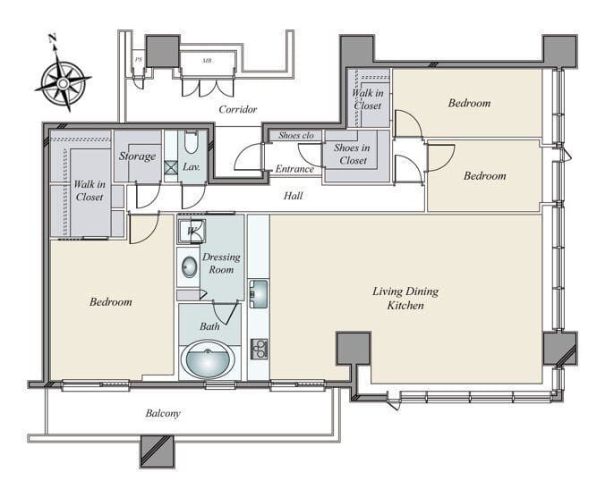
2LDK
132.5m²
東京都千代田区平河町2丁目16-2
最終更新日: 2026年2月24日
交通アクセス
駅情報なし
設備・特徴
2階以上
管理会社
JPhouse 株式会社
Hokinawaとは
Hokinawaは仲介手数料0円のオンライン不動産サービスです。管理会社から直接届く最新の空室情報をリアルタイムで確認し、気に入った物件はダイレクトに申し込み。押し売りや無断での電話・メールによる営業は一切行っておりません。
仲介手数料 0円
通常1ヶ月分が不要
来店不要
オンライン完結
ダイレクト申し込み
気に入ったらそのまま手続き





