ハーモニーレジデンス品川高輪
207
14.7万円
仲介手数料0円
築9年
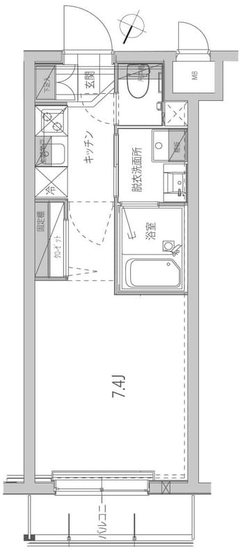
1K
26.1m²
北西向き
東京都港区高輪4丁目18-9
掲載開始日: 2026年4月6日
(1週間前)
申請・内見予約・メッセージにはログインが必要です。最短1分で完了。
月額費用
家賃 | 14.7万円 |
管理費・共益費 | 1.2万円 |
月額合計 | 15.9万円 |
|---|
初期費用
仲介手数料 | 0円 |
敷金 | 15.9万円 |
礼金 | 31.8万円 |
保証料 | 7.95万円 |
合計金額(概算) | 55.6万円 |
|---|
通常、鍵交換・クリーニング・火災保険・安心サポートなどの追加費用が別途発生します。詳細はお問い合わせください。
入居情報
入居開始予定日
要確認
掲載開始日
2026年4月6日
(1週間前)
交通アクセス
品川
9分
品川
9分
北品川
11分
他1駅
設備・特徴
2階以上
ペット相談可
オートロック
エアコン
バス・トイレ別
室内洗濯機置き場
浴室乾燥機
モニター付きインターホン
防犯カメラ
管理会社
株式会社S-FITパートナーズ
似た条件の物件
Hokinawaとは
Hokinawaは仲介手数料0円のオンライン不動産サービスです。管理会社から直接届く最新の空室情報をリアルタイムで確認し、気に入った物件はダイレクトに申し込み。押し売りや無断での電話・メールによる営業は一切行っておりません。
仲介手数料 0円
通常1ヶ月分が不要
来店不要
オンライン完結
ダイレクト申し込み
気に入ったらそのまま手続き
エリア情報
品川駅は山手線、京浜東北線、東海道本線(東京〜熱海)や京急本線が交差する主要な交通結節点で、港区と品川区の境界近くにあります。駅周辺は高層オフィスやビジネスホテルが並ぶ一方で、品川宿の名残を残す寺社や昔ながらの飲食店も点在し、昼夜で表情が変わる街並みが特徴です。京急を使った羽田方面や東海道沿線への動線が利便性を作り、都心と南方方面をつなぐ乗換拠点としての性格が色濃く出ています。








