ホーム

/

エリア検索

/

大田区

/

グリーンテラス蒲田

新着

グリーンテラス蒲田

3

12.6万円

仲介手数料0円
築14年
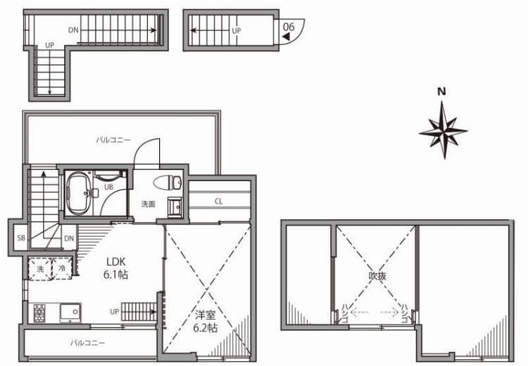
1DK
36.2m²
南向き

東京都大田区西蒲田4丁目5-10

JR京浜東北線の路線アイコン蒲田10

掲載開始日: 2026年4月22日

(2日前)

申請・内見予約・メッセージにはログインが必要です。最短1分で完了。

月額費用

家賃

12.6万円

管理費・共益費

0.5万円

月額合計

13.1万円

初期費用

仲介手数料

0円

敷金

12.6万円

礼金

0円

保証料

6.55万円

合計金額(概算)

19.1万円

通常、鍵交換・クリーニング・火災保険・安心サポートなどの追加費用が別途発生します。詳細はお問い合わせください。

入居情報

入居開始予定日

2026年6月21日以降

掲載開始日

2026年4月22日

(2日前)

交通アクセス

JR京浜東北線の路線アイコン

蒲田

10

設備・特徴

2階以上
エアコン
バス・トイレ別
室内洗濯機置き場
浴室乾燥機
モニター付きインターホン
防犯カメラ

管理会社

シマダハウス株式会社

エリア情報

蒲田駅に住むならどう?

商店街・買い物・外食が強い、実利派に刺さる街

蒲田駅は、**「暮らしやすさを最優先したい人」**と相性のいい駅です。
JR京浜東北線に加え、東急池上線・東急多摩川線が使えるこの駅は、大田区南部のなかでも存在感のある拠点。駅前には商店街、飲食店、量販店、駅ビルが高密度に集まり、日々の買い物も外食も、わざわざ別の街まで出なくても大半が済みます。

街の表情は、整いすぎた再開発エリアとは少し違います。蒲田の魅力は、雑多さを含めてもなお便利さが上回ること
とくに西口は活気が強く、アーケード商店街や飲食店街、ディスカウント系の店まで揃う、まさに“実用の街”という印象です。一方の東口は、グランデュオ蒲田や学校群、文化施設が集まり、西口よりやや整った空気があります。

蒲田といえば羽根つき餃子やとんかつのイメージが先行しがちですが、住む目線で見ると魅力はそれだけではありません。スーパーの選択肢が豊富で、日用品の調達にも強く、交通の自由度も高い。 派手さよりも「ちゃんと住みやすい」を求める人に向く駅です。


蒲田駅の大きな魅力は、生活が駅前で完結しやすいこと

蒲田の強みは、何かひとつが突出していることではなく、毎日の用事をまとめて片づけやすい密度にあります。

駅直結ではグランデュオ蒲田が頼れますし、西口側には東急プラザ蒲田があります。食料品、惣菜、ファッション、生活雑貨まで一通り揃えやすく、仕事帰りに立ち寄りやすい導線も優秀です。
さらに西口の街へ出ると、サンライズ蒲田を中心に、昔ながらの商店街ならではの使いやすさも残っています。チェーンだけで完結しない買い物環境があるのは、蒲田らしい良さです。

日常使いで見ると、スーパーの層の厚さも見逃せません。駅近で手早く済ませるなら東急ストア 蒲田店、惣菜や少し質のいい食材なら成城石井 グランデュオ蒲田店、西口寄りでしっかりまとめ買いするならライフ西蒲田店が便利です。
この“今日はどう買うか”を選べる自由度は、実際に暮らし始めると効いてきます。加えて、夜の買い足しや日用品の急な不足にはドン・キホーテ蒲田駅前店があり、生活の隙間を埋めやすい街です。


東口と西口で、街の性格はかなり違う

蒲田で部屋探しをするなら、駅名だけで決めず、東口・西口の違いは意識しておきたいポイントです。

西口:賑やかで、買い物も外食もとにかく強い

西口は、蒲田らしさが最も濃く出るエリアです。
東急プラザ蒲田サンライズ蒲田、個人経営の飲食店、量販店が重なり、街の情報量はかなり多め。便利さという意味では非常に優秀ですが、駅前に静かな住宅街の雰囲気を求める人には、少し落ち着かなさを感じることもあります。

ただし、駅から少し離れて西蒲田側に入ると、暮らしの場としては現実的です。駅前の活気を使いこなしながら、日常は一歩引いた場所で過ごす——そんな住み方がしやすいエリアでもあります。

東口:駅ビル・学校・文化施設が集まる、やや整った側

東口はグランデュオ蒲田を中心に、大田区民ホール・アプリコ日本工学院専門学校 蒲田キャンパス東京工科大学 蒲田キャンパスなどが集まるエリアです。学生や来街者の動きがありながら、西口ほど雑多ではなく、駅前の印象は比較的すっきりしています。商業性はしっかりありつつ、空気感は少し軽やかです。

学校が近いため、時間帯によっては若い人の往来が増え、街に動きが出ます。落ち着き一辺倒ではありませんが、**「便利さは欲しいけれど、西口の濃さは少し強い」**という人には、東口側のほうがしっくりきやすいでしょう。


外食が強い街に住みたい人には、かなり楽しい

蒲田は、日常の外食満足度が高い街です。
有名なのはやはり餃子で、你好 別館歓迎は、蒲田の食文化を語るうえで外せない存在。観光的に“名物を食べる街”という顔もありますが、住む立場から見た価値は、駅前で気軽においしい店を選べる層の厚さにあります。

さらに、とんかつ檍のような蒲田を代表する人気店もあり、外食全体の水準は高め。チェーンで手早く済ませる日と、「今日はちゃんと食べたい」という日を近所で使い分けやすいのは、単身者にも共働き世帯にも便利です。

駅近で軽く休憩したいときには、スターバックス コーヒー グランデュオ蒲田店のような使いやすいカフェもあります。待ち合わせ、時間調整、ちょっとした作業まで含めて、駅前の暮らしを組み立てやすい駅です。


買い物環境は、大田区内でもかなり優秀

蒲田の住みやすさを支えているのは、駅前商業の強さだけではありません。
この街の良さは、大型施設・専門店・日常使いのスーパーがきれいにつながっていることにあります。

たとえば、手芸やホビーが好きな人にとってはユザワヤ蒲田店の存在感が大きいはずです。単に“有名店がある”という話ではなく、趣味の買い物まで遠出せずに済ませられることが、暮らしの豊かさに直結します。
また、東急プラザ蒲田の屋上にあるかまたえんのような、少し肩の力が抜けた蒲田らしいスポットが残っているのも、この街の親しみやすさです。

さらに、JR蒲田駅と京急蒲田駅の中間エリアまで視野を広げれば、西友蒲田中央店のような選択肢もあります。駅前だけで完結する暮らしもできるし、少し広めに街を使ってコスト感よく暮らすこともできる。こうした柔軟さも蒲田の強みです。


医療面の安心感もある

長く住む前提で見ると、蒲田は医療アクセスにも安心感があります。
周辺には牧田総合病院JCHO東京蒲田医療センターがあり、エリア全体で見れば東邦大学医療センター大森病院も視野に入ります。

もちろん、どの病院を主に使うかは住む場所や診療科によって変わりますが、単身でもファミリーでも、大きめの医療機関にアクセスしやすいのはこの街の底力です。体調不良や通院のしやすさは、暮らし始めてから想像以上に重要になります。


学生街の空気があり、街に若さと回転がある

蒲田は純粋な住宅駅ではなく、学ぶ人・働く人・買い物に来る人が混ざり合う街です。
駅近には日本工学院専門学校 蒲田キャンパス東京工科大学 蒲田キャンパスがあり、平日は学生の往来が街のリズムをつくっています。加えて日本工学院アリーナがあることで、イベント時にはさらに人の流れが生まれます。

この“学生街の要素”は、街を若々しく見せる一方、時間帯によっては賑わいにもつながります。静けさを最優先する人には合わない面もありますが、ほどよく人の気配がある街のほうが安心できるという人には、むしろ相性のいい環境です。


家賃相場の見方

便利さを考えると、極端に割高ではない

蒲田駅周辺の目安は、以下の通りです。

  • ワンルーム〜1Kで8万〜11万円前後
  • 1LDKで14万〜18万円前後
  • ファミリー帯で18万〜25万円前後

都心の人気駅ほどの高さではない一方で、駅の利便性や商業集積を考えれば、安すぎる街でもありません。
ただ、蒲田は**「駅前が便利すぎるぶん、多少駅から離れても生活満足度が落ちにくい」**のがポイントです。駅徒歩数分にこだわりすぎるより、西蒲田や新蒲田、あるいは池上線・多摩川線沿線まで少し広げて探すほうが、条件のバランスを取りやすくなります。


蒲田勤務なら、どこに住むのが現実的?

蒲田に通う前提なら、無理に大ターミナル周辺で探すより、蒲田の生活圏とつながる沿線住宅地のほうが暮らしやすいことは少なくありません。

蓮沼

池上線でひと駅。
蒲田の駅前利便をほぼ普段使いしながら、住まいは少し落ち着いた場所に置きたい人に向いています。徒歩や自転車も視野に入りやすく、「蒲田そのものに住むと少し濃い」と感じる人の調整役として優秀です。

矢口渡

多摩川線で近く、蒲田より住宅地らしい空気があります。
駅前の雑多さを毎日浴びたくはないけれど、通勤に手間はかけたくない。そんな人にちょうどいい距離感で、単身でもファミリーでも検討しやすい沿線です。

池上

商店街の便利さと住宅地の落ち着きのバランスがよく、沿線でも人気の出やすいエリアです。
蒲田へ出やすい一方で、街の表情はかなり異なります。蒲田勤務だが、住む場所にはもう少し穏やかさがほしいという人に向いています。

久が原

池上線沿線のなかでも住宅色が強く、落ち着いた住環境を求める人向きです。
通勤時間は少し伸びますが、そのぶん街の空気は整っており、住環境優先で蒲田へ通いたい人にフィットします。

千鳥町

穏やかな住宅地として選びやすく、通勤負担も重すぎません。
派手さはないものの、日々の暮らしを静かに回したい人には現実的な選択肢です。

下丸子

平坦で生活動線を組みやすく、広さや暮らしやすさを重視する人に向くエリアです。
蒲田へ出やすいため、駅前利便を活かしながら、住まいには少し余裕を持たせたい人に向いています。

武蔵新田

多摩川線沿線らしい住宅地感があり、蒲田駅前の密度を少し距離を置いて受け止めたい人向けです。
日常は落ち着かせつつ、必要なときに蒲田を使う暮らし方がしやすいエリアです。

京急蒲田

空港アクセスを重視するなら有力候補です。
JR蒲田とは別駅ですが、生活圏としては十分につながっています。出張や旅行が多い人、羽田方面への移動が多い人にはかなり現実的です。

糀谷

羽田空港方面との相性を重視する人向けです。
蒲田へは京急蒲田経由になりますが、暮らしの拠点を空港寄りに置きつつ蒲田勤務に対応したい人には、選ぶ意味があります。

川崎

東京側にこだわらなければ、生活利便の強さという意味で十分比較対象に入ります。
大型商業施設が充実しており、駅前完結型の暮らしがしやすい街です。蒲田勤務なら距離も近く、商業力を最優先する人には有力な候補になります。


蒲田駅が向いている人

  • 駅前で買い物も食事もまとめて済ませたい人
  • 個人店もチェーンも両方使いたい人
  • 商店街が生きている街に魅力を感じる人
  • 羽田空港方面や京浜東北線沿線への動きやすさを重視する人
  • 少し雑多でも、生活利便の高さを優先したい人

あまり向かない人

  • 駅前から整然とした高級住宅地の雰囲気を求める人
  • 夜も含めて静けさを最優先したい人
  • 人の多さや街の情報量が多い環境が苦手な人

まとめ

蒲田は、“きれい”より“使える”を重視する人に強い

蒲田駅は、洗練一辺倒の街ではありません。
その代わりに、暮らしに必要なものが驚くほど手元に揃う駅です。商店街、駅ビル、スーパー、飲食店、量販店、医療、学校——それぞれが高密度に集まり、生活の回しやすさに直結しています。

映画の街としての歴史があり、餃子やとんかつといった名物もある。けれど、住む街としての蒲田の本質は、そうした看板以上に、**「毎日をラクにしてくれる総合力」**にあります。

部屋探しでは、駅前の賑わいだけで判断せず、東口と西口の違い、さらに周辺の住宅エリアまで含めて見るのがコツです。
蒲田の便利さをきちんと使いこなせる人にとって、この駅はかなり満足度の高い選択肢になるはずです。

ブログ記事を全文で読む

同じ建物の他の部屋
1

募集終了の部屋

似た条件の物件

Hokinawaとは

Hokinawaは仲介手数料0円のオンライン不動産サービスです。管理会社から直接届く最新の空室情報をリアルタイムで確認し、気に入った物件はダイレクトに申し込み。押し売りや無断での電話・メールによる営業は一切行っておりません。

仲介手数料 0円

通常1ヶ月分が不要

来店不要

オンライン完結

ダイレクト申し込み

気に入ったらそのまま手続き

エリア情報

蒲田駅はJR京浜東北線と東急多摩川線・池上線が交差する大田区の交通結節点で、区内の南北や都心方面への乗り換えに使われることが多い。駅周辺は昭和の香りを残す商店街やガード下の飲食店が密集し、とんかつ店や居酒屋が地元に根付いた賑わいを作っている。駅前の駅ビルや路地の小さな専門店が入り混じり、住宅地や小規模な工場地帯とも接する雑多で生活感のある街並みが特徴だ。