グレーシア勝どき
12F
最終募集時の賃料
26万円
築11年
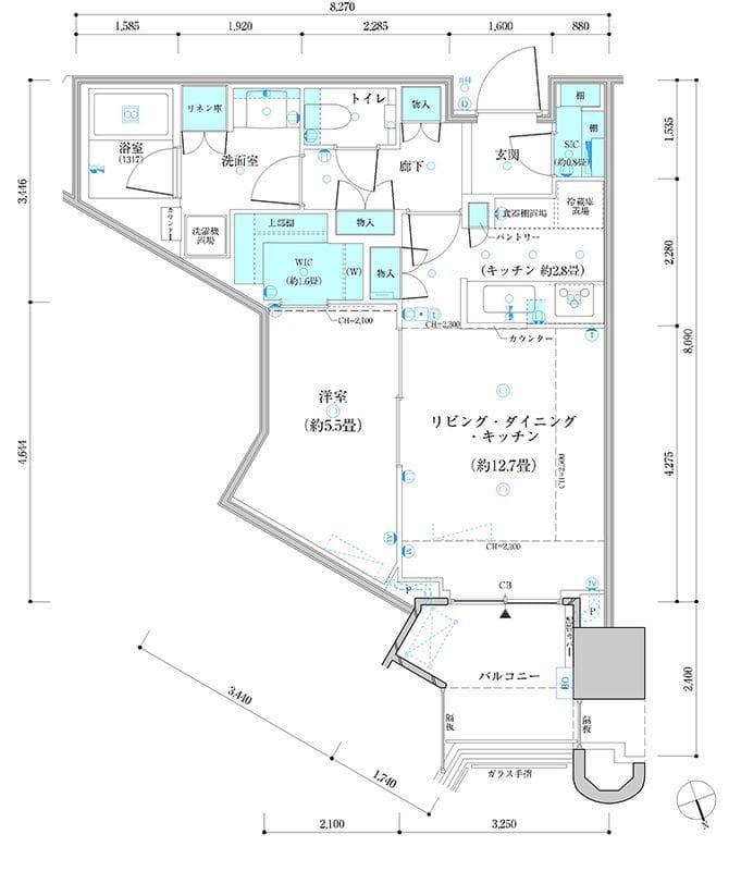
2LDK
62.2m²
東京都中央区勝どき4丁目1-11
最終更新日: 2026年3月17日
交通アクセス
勝どき
2分
設備・特徴
2階以上
ペット相談可
オートロック
エアコン
バス・トイレ別
室内洗濯機置き場
独立洗面台
浴室乾燥機
モニター付きインターホン
2人入居可
床暖房
管理会社
株式会社 Lotus Link 管理部
Hokinawaとは
Hokinawaは仲介手数料0円のオンライン不動産サービスです。管理会社から直接届く最新の空室情報をリアルタイムで確認し、気に入った物件はダイレクトに申し込み。押し売りや無断での電話・メールによる営業は一切行っておりません。
仲介手数料 0円
通常1ヶ月分が不要
来店不要
オンライン完結
ダイレクト申し込み
気に入ったらそのまま手続き
エリア情報
都営大江戸線の勝どき駅(中央区)は、隅田川沿いのベイエリアに位置し、勝鬨橋などの川景色が身近に感じられる駅です。築地や銀座方面へのアクセスが良く、高層マンションが並ぶ新しい住宅地と、昔ながらの飲食店や商店街が混在する生活エリアが特徴です。川沿いのプロムナードや市場周辺の朝の雰囲気、夜の小さな居酒屋やカフェが地域の顔を作っています。





