GENOVIA川崎Ⅶ(ジェノヴィア川崎セブン)
211
最終募集時の賃料
9.25万円
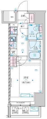
築2年
1K
25.7m²
神奈川県川崎市川崎区南町15-5
最終更新日: 2026年1月31日
交通アクセス
駅情報なし
設備・特徴
2階以上
ペット相談可
オートロック
エアコン
バス・トイレ別
室内洗濯機置き場
独立洗面台
浴室乾燥機
モニター付きインターホン
防犯カメラ
2人入居可
管理会社
株式会社 Four D
似た条件の物件
Hokinawaとは
Hokinawaは仲介手数料0円のオンライン不動産サービスです。管理会社から直接届く最新の空室情報をリアルタイムで確認し、気に入った物件はダイレクトに申し込み。押し売りや無断での電話・メールによる営業は一切行っておりません。
仲介手数料 0円
通常1ヶ月分が不要
来店不要
オンライン完結
ダイレクト申し込み
気に入ったらそのまま手続き



