新着
エスタート新宿
0501
15.3万円
仲介手数料0円
築10年
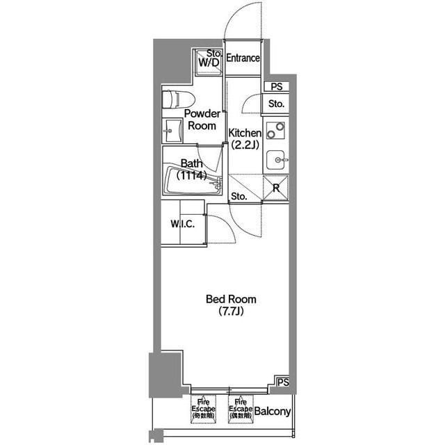
1K
25.0m²
南西向き
東京都新宿区西新宿3丁目7-28
掲載開始日: 2026年4月17日
(2日前)
申請・内見予約・メッセージにはログインが必要です。最短1分で完了。
月額費用
家賃 | 15.3万円 |
管理費・共益費 | 0.8万円 |
月額合計 | 16.1万円 |
|---|
初期費用
仲介手数料 | 0円 |
敷金 | 15.3万円 |
礼金 | 0円 |
保証料 | 8.05万円 |
合計金額(概算) | 23.4万円 |
|---|
通常、鍵交換・クリーニング・火災保険・安心サポートなどの追加費用が別途発生します。詳細はお問い合わせください。
入居情報
入居開始予定日
即入居可
掲載開始日
2026年4月17日
(2日前)
交通アクセス
初台
6分
新宿
10分
設備・特徴
2階以上
ペット相談可
オートロック
エアコン
バス・トイレ別
室内洗濯機置き場
浴室乾燥機
モニター付きインターホン
管理会社
東急住宅リース株式会社 本店
Hokinawaとは
Hokinawaは仲介手数料0円のオンライン不動産サービスです。管理会社から直接届く最新の空室情報をリアルタイムで確認し、気に入った物件はダイレクトに申し込み。押し売りや無断での電話・メールによる営業は一切行っておりません。
仲介手数料 0円
通常1ヶ月分が不要
来店不要
オンライン完結
ダイレクト申し込み
気に入ったらそのまま手続き
エリア情報
初台駅は京王新線の駅で、渋谷区と新宿区の境に位置し、東京オペラシティや新国立劇場といった文化施設の最寄りとして知られる。駅前はオフィスやコンサートホールが目立つ一方で、通りを入ると落ち着いた住宅街と昔ながらの飲食店や小さな商店が混在している。新宿の西側へのアクセス口として通勤や観劇の利用が多く、夜は小さな居酒屋やバーが賑わう街並みが残る。











