ドゥーエ横浜駅前
1303
最終募集時の賃料
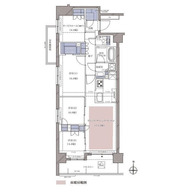
26万円
築23年
1SLDK
63.1m²
神奈川県横浜市神奈川区金港町8-1
最終更新日: 2025年11月7日
交通アクセス
神奈川
3分
横浜
5分
設備・特徴
2階以上
オートロック
エアコン
室内洗濯機置き場
独立洗面台
モニター付きインターホン
防犯カメラ
管理会社
株式会社長谷工ライブネット東京事務所
同じ建物の他の部屋16件
募集中の部屋
ドゥーエ横浜駅前 0806
12.5万円
1R
25.52㎡
ドゥーエ横浜駅前 1504
25万円
1LDK
54.34㎡
ドゥーエ横浜駅前 1101
29.5万円
2LDK
61.63㎡
ドゥーエ横浜駅前 1301
30万円
2LDK
61.63㎡
ドゥーエ横浜駅前 1710
31万円
3LDK
72.63㎡
ドゥーエ横浜駅前 0914
31.5万円
3LDK
72.63㎡
ドゥーエ横浜駅前 0313
33万円
3LDK
78.88㎡
ドゥーエ横浜駅前 0713
33.5万円
3LDK
78.88㎡
ドゥーエ横浜駅前 1609
36万円
3LDK
83.62㎡
ドゥーエ横浜駅前 2104
36万円
2SLDK
70.78㎡
ドゥーエ横浜駅前 1409
37万円
3LDK
83.62㎡
ドゥーエ横浜駅前 2108
37万円
3LDK
72.63㎡
募集終了の部屋
Hokinawaとは
Hokinawaは仲介手数料0円のオンライン不動産サービスです。管理会社から直接届く最新の空室情報をリアルタイムで確認し、気に入った物件はダイレクトに申し込み。押し売りや無断での電話・メールによる営業は一切行っておりません。
仲介手数料 0円
通常1ヶ月分が不要
来店不要
オンライン完結
ダイレクト申し込み
気に入ったらそのまま手続き
エリア情報
京急本線の神奈川駅(横浜市神奈川区)は、下町風情の残るコンパクトな駅です。住宅と昔ながらの商店や飲食店が入り混じる街並みが広がり、地元の通勤や買い物の拠点として根付いています。京急線で横浜方面や川崎方面への移動手段になっており、周辺の商店街や老舗の飲食店で地域色を感じられます。


















