新着
ブライズ東日本橋
401
18万円
仲介手数料0円
築5年
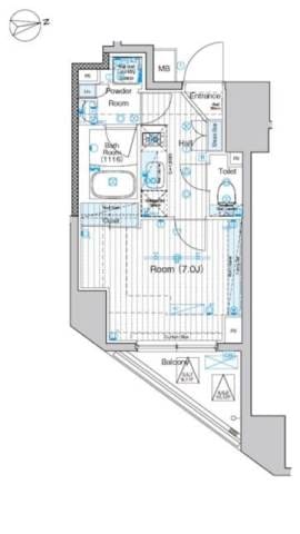
1LDK
41.5m²
東向き
東京都中央区東日本橋2丁目24-16
掲載開始日: 2026年4月16日
(昨日)
申請・内見予約・メッセージにはログインが必要です。最短1分で完了。
月額費用
家賃 | 18万円 |
管理費・共益費 | 1.5万円 |
月額合計 | 19.5万円 |
|---|
初期費用
仲介手数料 | 0円 |
敷金 | 0円 |
礼金 | 19.5万円 |
保証料 | 9.75万円 |
合計金額(概算) | 29.3万円 |
|---|
通常、鍵交換・クリーニング・火災保険・安心サポートなどの追加費用が別途発生します。詳細はお問い合わせください。
入居情報
入居開始予定日
要確認
掲載開始日
2026年4月16日
(昨日)
交通アクセス
東日本橋
4分
馬喰町
4分
馬喰横山
5分
設備・特徴
2階以上
オートロック
エアコン
バス・トイレ別
室内洗濯機置き場
独立洗面台
浴室乾燥機
モニター付きインターホン
防犯カメラ
2人入居可
床暖房
管理会社
株式会社ミライズプロパティ
Hokinawaとは
Hokinawaは仲介手数料0円のオンライン不動産サービスです。管理会社から直接届く最新の空室情報をリアルタイムで確認し、気に入った物件はダイレクトに申し込み。押し売りや無断での電話・メールによる営業は一切行っておりません。
仲介手数料 0円
通常1ヶ月分が不要
来店不要
オンライン完結
ダイレクト申し込み
気に入ったらそのまま手続き
エリア情報
東日本橋駅(都営浅草線)は中央区の問屋街とオフィス街の狭間にある地下駅で、繊維や装飾品の問屋が連なる商業エリアの一角に位置します。古くからの問屋や小さな工房、昼は働き手向けの定食屋や居酒屋が目立つ一方、細い路地に残る老舗や下町的な町並みが街の風情を作っています。都営浅草線の駅として都心側への足回りを担い、業務で行き交う人と地元住民の日常が混ざるエリアです。







