桜戸建
0
35万円
仲介手数料0円
築8年
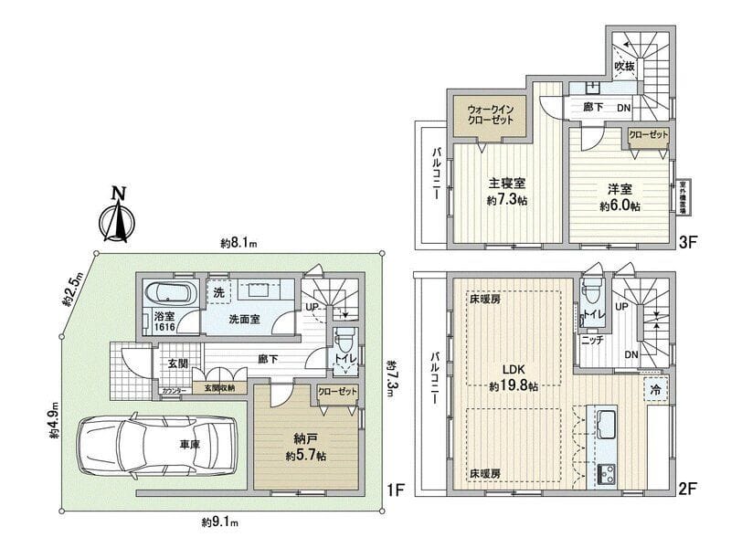
3LDK
99.0m²
南向き
東京都世田谷区桜2丁目19-5-1
掲載開始日: 2026年3月14日
(1ヶ月前)
申請・内見予約・メッセージにはログインが必要です。最短1分で完了。
月額費用
家賃 | 35万円 |
月額合計 | 35万円 |
|---|
初期費用
仲介手数料 | 0円 |
敷金 | 70万円 |
礼金 | 35万円 |
保証料 | 17.5万円 |
合計金額(概算) | 122.5万円 |
|---|
通常、鍵交換・クリーニング・火災保険・安心サポートなどの追加費用が別途発生します。詳細はお問い合わせください。
入居情報
入居開始予定日
2026年4月16日以降
掲載開始日
2026年3月14日
(1ヶ月前)
交通アクセス
経堂
12分
設備・特徴
エアコン
バス・トイレ別
室内洗濯機置き場
独立洗面台
浴室乾燥機
モニター付きインターホン
管理会社
株式会社リロケーション・ジャパン 留守宅
Hokinawaとは
Hokinawaは仲介手数料0円のオンライン不動産サービスです。管理会社から直接届く最新の空室情報をリアルタイムで確認し、気に入った物件はダイレクトに申し込み。押し売りや無断での電話・メールによる営業は一切行っておりません。
仲介手数料 0円
通常1ヶ月分が不要
来店不要
オンライン完結
ダイレクト申し込み
気に入ったらそのまま手続き
エリア情報
経堂駅(小田急小田原線・世田谷区)は、住宅地に溶け込んだ小規模な商店街が連なる地域の生活拠点です。駅前から伸びる「すずらん通り」「農大通り」といった個店主体の商店街にベーカリーや喫茶店、古書店などが点在し、下町的な買物文化と独立系店の雰囲気が目立ちます。都心へのアクセス路線としての利便性を持ちつつ、季節の催しや日常風景が地域性を形作る街です。





