BPRレジデンス渋谷
1004
最終募集時の賃料
15.6万円
築20年
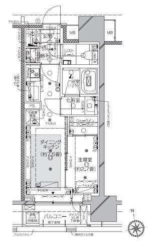
1R
28.3m²
東京都渋谷区渋谷3丁目13-5
最終更新日: 2026年2月16日
交通アクセス
渋谷
5分
渋谷
5分
設備・特徴
2階以上
オートロック
エアコン
バス・トイレ別
防犯カメラ
管理会社
東急住宅リース株式会社 本店
Hokinawaとは
Hokinawaは仲介手数料0円のオンライン不動産サービスです。管理会社から直接届く最新の空室情報をリアルタイムで確認し、気に入った物件はダイレクトに申し込み。押し売りや無断での電話・メールによる営業は一切行っておりません。
仲介手数料 0円
通常1ヶ月分が不要
来店不要
オンライン完結
ダイレクト申し込み
気に入ったらそのまま手続き
エリア情報
渋谷駅は渋谷区と目黒区の境界近くに位置し、JR山手線・埼京線・湘南新宿ライン、京王井の頭線、東急田園都市線・東急東横線、東京メトロ銀座線・半蔵門線・副都心線が乗り入れる主要な乗換拠点です。スクランブル交差点とハチ公像を中心に大型の商業施設やファッションビル、再開発された複合施設が立ち並び、若者文化とビジネス街、夜の飲食店街が混在する街並みが特徴です。キャットストリートや路地裏には個性的なブティックや小さな飲食店、ライブハウスが点在し、時間帯や目的によって表情が大きく変わるエリアです。













