BLIKS若林
405
31.9万円
仲介手数料0円
築11年
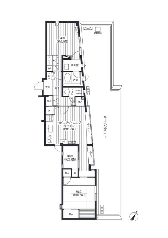
1LDK
73.5m²
東京都世田谷区若林3丁目4-9
掲載開始日: 2026年3月14日
(1ヶ月前)
申請・内見予約・メッセージにはログインが必要です。最短1分で完了。
月額費用
家賃 | 31.9万円 |
管理費・共益費 | 2.5万円 |
月額合計 | 34.4万円 |
|---|
初期費用
仲介手数料 | 0円 |
敷金 | 31.9万円 |
礼金 | 31.9万円 |
保証料 | 17.2万円 |
合計金額(概算) | 81万円 |
|---|
通常、鍵交換・クリーニング・火災保険・安心サポートなどの追加費用が別途発生します。詳細はお問い合わせください。
入居情報
入居開始予定日
即入居可
掲載開始日
2026年3月14日
(1ヶ月前)
交通アクセス
若林
4分
設備・特徴
2階以上
オートロック
エアコン
室内洗濯機置き場
独立洗面台
浴室乾燥機
モニター付きインターホン
2人入居可
床暖房
管理会社
東急リバブル株式会社 三軒茶屋センター(賃貸)
Hokinawaとは
Hokinawaは仲介手数料0円のオンライン不動産サービスです。管理会社から直接届く最新の空室情報をリアルタイムで確認し、気に入った物件はダイレクトに申し込み。押し売りや無断での電話・メールによる営業は一切行っておりません。
仲介手数料 0円
通常1ヶ月分が不要
来店不要
オンライン完結
ダイレクト申し込み
気に入ったらそのまま手続き
エリア情報
東急世田谷線の若林駅は、世田谷区の住宅地にある小さな駅で、地域の日常生活の入口になっている。駅周辺は昔ながらの商店や個人経営の飲食店、小さなカフェが点在し、地元の買い物や散歩に適した落ち着いた街並みが広がる。線路沿いに低層住宅や路地が続き、ほどよく暮らしに根ざした世田谷らしい日常感が感じられる。





