アルテシモ リンク コモド
204
最終募集時の賃料
8.4万円
築18年
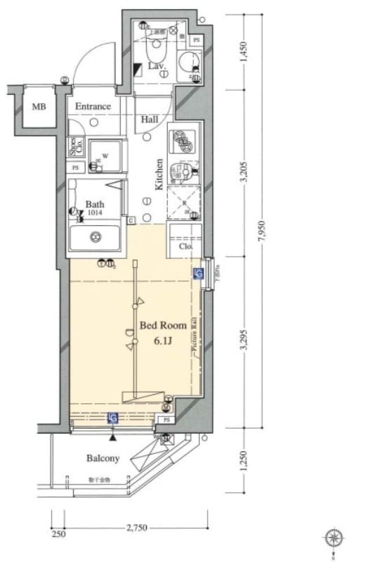
1R
20.6m²
北向き
東京都江東区亀戸6丁目44-4
最終更新日: 2026年4月12日
交通アクセス
亀戸
7分
亀戸水神
9分
設備・特徴
2階以上
オートロック
エアコン
バス・トイレ別
室内洗濯機置き場
独立洗面台
浴室乾燥機
モニター付きインターホン
2人入居可
管理会社
株式会社リアルワン
Hokinawaとは
Hokinawaは仲介手数料0円のオンライン不動産サービスです。管理会社から直接届く最新の空室情報をリアルタイムで確認し、気に入った物件はダイレクトに申し込み。押し売りや無断での電話・メールによる営業は一切行っておりません。
仲介手数料 0円
通常1ヶ月分が不要
来店不要
オンライン完結
ダイレクト申し込み
気に入ったらそのまま手続き
エリア情報
亀戸駅は江東区にあるJR総武線の駅で、東武亀戸線の起点としても機能する地域の交通拠点です。駅周辺は商店街や飲食店が密集した庶民的な街並みが続き、特に亀戸餃子などのローカルグルメや居酒屋がにぎわいます。近くには亀戸天神社のような歴史的な寺社や運河沿いの路地が残り、買い物や散策に向く下町らしい雰囲気が色濃く出ています。






