アリカ大森2
0302
最終募集時の賃料
10.5万円
新築
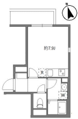
1R
20.9m²
東京都品川区南大井5丁目24-2
最終更新日: 2026年3月26日
交通アクセス
大森
8分
設備・特徴
2階以上
オートロック
エアコン
バス・トイレ別
室内洗濯機置き場
浴室乾燥機
モニター付きインターホン
防犯カメラ
管理会社
株式会社S-FITパートナーズ
似た条件の物件
Hokinawaとは
Hokinawaは仲介手数料0円のオンライン不動産サービスです。管理会社から直接届く最新の空室情報をリアルタイムで確認し、気に入った物件はダイレクトに申し込み。押し売りや無断での電話・メールによる営業は一切行っておりません。
仲介手数料 0円
通常1ヶ月分が不要
来店不要
オンライン完結
ダイレクト申し込み
気に入ったらそのまま手続き
エリア情報
JR京浜東北線の大森駅(東京都大田区)は、下町的な商店街と海沿いの工場・倉庫地が隣接する生活圏の駅です。駅前には古くからの商店街や飲食店が残り、昼は買い物客、夜は居酒屋中心の地元色が濃く出ます。近隣には考古学で知られる大森貝塚の跡もあり、湾岸に近い暮らしぶりと歴史が混ざる街並みが特徴です






