アピチェ田園調布
0103
9.4万円
仲介手数料0円
築2年
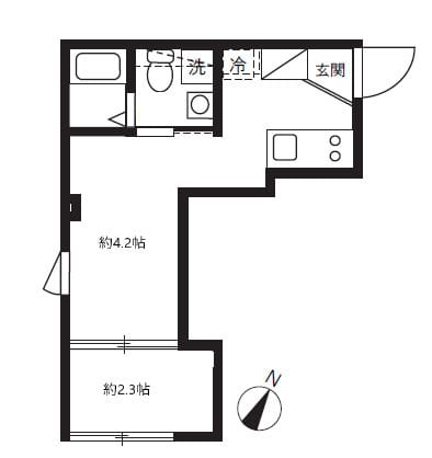
1DK
18.3m²
南東向き
東京都大田区田園調布南18-7
掲載開始日: 2026年4月13日
(3日前)
申請・内見予約・メッセージにはログインが必要です。最短1分で完了。
月額費用
家賃 | 9.4万円 |
管理費・共益費 | 1.2万円 |
月額合計 | 10.6万円 |
|---|
初期費用
仲介手数料 | 0円 |
敷金 | 10.6万円 |
礼金 | 21.2万円 |
保証料 | 5.3万円 |
合計金額(概算) | 37.1万円 |
|---|
通常、鍵交換・クリーニング・火災保険・安心サポートなどの追加費用が別途発生します。詳細はお問い合わせください。
入居情報
入居開始予定日
要確認
掲載開始日
2026年4月13日
(3日前)
交通アクセス
沼部
5分
御嶽山
13分
設備・特徴
オートロック
エアコン
バス・トイレ別
室内洗濯機置き場
浴室乾燥機
防犯カメラ
管理会社
株式会社S-FITパートナーズ
Hokinawaとは
Hokinawaは仲介手数料0円のオンライン不動産サービスです。管理会社から直接届く最新の空室情報をリアルタイムで確認し、気に入った物件はダイレクトに申し込み。押し売りや無断での電話・メールによる営業は一切行っておりません。
仲介手数料 0円
通常1ヶ月分が不要
来店不要
オンライン完結
ダイレクト申し込み
気に入ったらそのまま手続き
エリア情報
沼部駅は東急多摩川線の小さな駅で、大田区の住宅地に溶け込む落ち着いた街並みが広がります。駅周辺は低層の住宅や昔ながらの商店、個人経営の飲食店が残る日常使いの商店街と、歩いて行ける多摩川の河岸や緑地が特徴です。蒲田や多摩川方面への近距離移動に適した地域交通の結節点であり、生活感のあるローカルな風景が色濃く残っています。








