AIFLAT四谷若葉
0701
22.3万円
仲介手数料0円
築2年
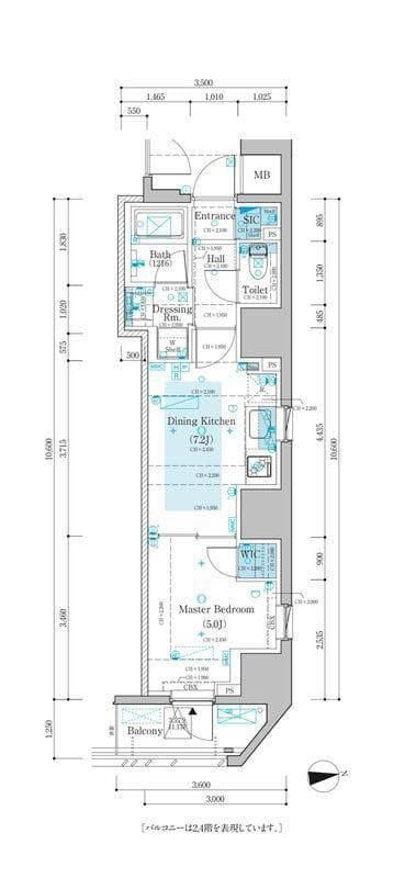
1LDK
36.8m²
東京都新宿区若葉3丁目1-3
掲載開始日: 2026年3月14日
(1ヶ月前)
申請・内見予約・メッセージにはログインが必要です。最短1分で完了。
月額費用
家賃 | 22.3万円 |
管理費・共益費 | 1.2万円 |
月額合計 | 23.5万円 |
|---|
初期費用
仲介手数料 | 0円 |
敷金 | 22.3万円 |
礼金 | 0円 |
保証料 | 11.8万円 |
合計金額(概算) | 34.0万円 |
|---|
通常、鍵交換・クリーニング・火災保険・安心サポートなどの追加費用が別途発生します。詳細はお問い合わせください。
入居情報
入居開始予定日
即入居可
掲載開始日
2026年3月14日
(1ヶ月前)
交通アクセス
四谷三丁目
10分
四ツ谷
10分
設備・特徴
2階以上
ペット相談可
オートロック
エアコン
バス・トイレ別
室内洗濯機置き場
独立洗面台
浴室乾燥機
モニター付きインターホン
2人入居可
管理会社
スターツピタットハウス株式会社 リーシング営業課
Hokinawaとは
Hokinawaは仲介手数料0円のオンライン不動産サービスです。管理会社から直接届く最新の空室情報をリアルタイムで確認し、気に入った物件はダイレクトに申し込み。押し売りや無断での電話・メールによる営業は一切行っておりません。
仲介手数料 0円
通常1ヶ月分が不要
来店不要
オンライン完結
ダイレクト申し込み
気に入ったらそのまま手続き
エリア情報
四ツ谷駅はJR中央・総武線とJR中央線(快速)、東京メトロ丸ノ内線・南北線が交差する、新宿区と千代田区の境にある乗換駅です。周辺は上智大学をはじめ教育機関やオフィスが混在し、寺社や昔ながらの和菓子店・飲食店が点在する落ち着いた街並みが残っています。都心へのアクセス拠点でありながら、「四谷怪談」にまつわる歴史的な面影が町の雰囲気に色を添えています。









