阿部邸
2
最終募集時の賃料
21.5万円
築35年
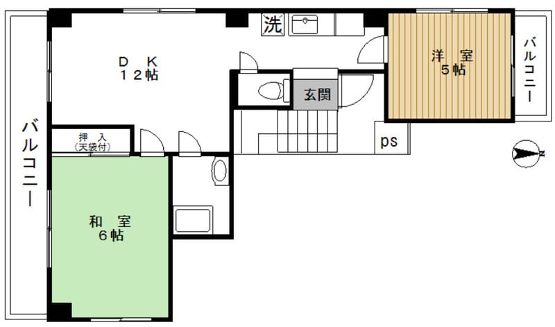
3LDK
62.8m²
東京都品川区荏原3丁目4-9
最終更新日: 2026年4月13日
交通アクセス
武蔵小山
6分
設備・特徴
2階以上
ペット相談可
エアコン
バス・トイレ別
室内洗濯機置き場
独立洗面台
2人入居可
管理会社
株式会社アメニティー
Hokinawaとは
Hokinawaは仲介手数料0円のオンライン不動産サービスです。管理会社から直接届く最新の空室情報をリアルタイムで確認し、気に入った物件はダイレクトに申し込み。押し売りや無断での電話・メールによる営業は一切行っておりません。
仲介手数料 0円
通常1ヶ月分が不要
来店不要
オンライン完結
ダイレクト申し込み
気に入ったらそのまま手続き
エリア情報
武蔵小山駅は品川区内で目黒区に近い住宅地の入口に位置する駅です。長いアーケードのパルム商店街を核に、昔ながらの個人商店やベーカリー、新しいカフェや小さな飲食店が混在し、日常の買い物や食事で賑わう街並みが続きます。都心方面へのアクセスを担いながら、地元住民の暮らしを支える生活拠点としての色合いが強いエリアです。





